Pääkaupunkiseudun raitiotien suunnitteluohje
Raitiotien tilavaatimukset
Aukean tilan ulottuma (ATU)
Aukean tilan ulottuma (ATU) kuvaa raitiovaunun tarvitseman tilan. ATU sisältää vaunun rungon, peilit ja huojuntavarat kaikissa olosuhteissa. Aukean tilan ulottuman sisälle ei saa sijoittaa kiinteitä rakenteita lukuun ottamatta pysäkkilaitureita. Muihin tienkäyttäjiin ja rakenteisiin tarvittavat vähimmäisetäisyydet on kuvattu luvussa 5 Raitiotien mitoitus kadun poikkileikkauksessa.
Raitiovaunun vaatima aukean tilan ulottuma suoralla radalla (kuva 1) ja vähintään 250 metrin kaarresäteellä on leveyssuunnassa 2 900 mm. Jos kaarresäde on alle 250 metriä, ATU:a on levennettävä, jolloin rata-alueen vaatima tila ja raideväli kasvavat. Levennystä merkitään kirjaimella e ja se on kuvattu kohdassa Aukean tilan ulottuman leventäminen kaarteissa.
Aukean tilan ulottuma on korkeussuunnassa 6 200 mm kiskon selästä. ATU sisältää vaunun vaatiman tilan 3 900 mm sekä virroittimen vaatiman tilan 2 300 mm.
Huom: pysäkkilaiturit ulottuvat ATU:n sisäpuolelle. Kuvaa tullaan tältä osin täydentämään (8.1.2024).

Virroittimen alue
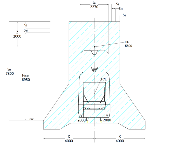
Aukean tilan ulottuman lisäksi raitiotien tilavaatimuksia määrittää virroittimen vaara-alue (ViVa) (kuvat 2, 3 ja 4 rasteroitu osuus). ViVan leveys on 2 000 mm raiteen keskilinjasta eli kokonaisleveys on 4 000 mm. Virroittimen vaara-alueen korkeus vaihtelee riippuen ajojohtimen rakenteesta. Pikaraitiotieverkolla kannattimellisessa rakenteessa ViVa:n korkeus kiskonselänkorkeudesta on 9 200 mm ja kannattimettomassa rakenteessa 8 100 mm (kuvat 2 ja 3). Kantakaupungissa vastaava korkeus kannattimettomalle rakenteelle on 7 800 mm (kuva 4).



Raitiotien vaaraulottuma (VATU)
Raitiotien vaaraulottuma (VATU-alue) on alue, johon ajolanka voi katketessaan osua. Alue on 4,0 m raiteen keskilinjasta. Kaikki VATU-alueella osuvat sähköä johtavat rakenteet on maadoitettava tai eristettävä. Kuvissa 5-7 esitetään VATU-alueiden mitat erilaisille raitiotierakenteille.




Aukean tilan ulottuman leventäminen kaarteissa
Raitiotien aukean tilan ulottumaa (ATU) levennetään kaarteessa vaunun kulmien ja keskiosan ulosheiton huomioimiseksi (kuva 9). Kaarteen aiheuttama levitys ATU:n puolileveyteen merkitään e. Kallistetussa raiteessa on lisäksi huomioitava vaunun kallistumisesta aiheutuva levenemä bH.
Tarkempaa tarkastelua vaativissa tapauksissa kaarteen sisäpuolinen aukean tilan ulottuman levitys merkitään es ja ulkopuolinen eu.

ATU:n Kaarrelevitys pääkaaren alueella
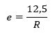
Levityksen suuruus (e) riippuu raitiotien vaakageometrian kaarresäteestä sekä vaunun mitoista. Lähtökohtaisesti aukean tilan ulottuman levitys lasketaan kuten kaavassa 1 on esitetty. Levitys oletetaan yhtä suureksi kaarten sisä- ja ulkopuolella. Kaavan antamia arvoja on esitetty taulukossa 1.

Huom: jyrkissä vasemmalle suuntautuvissa kaarteissa nivelvaunujen oikeanpuoleinen peili vaatii enemmän tilaa kuin kaavassa ja taulukossa on esitetty! Esim. R=25 m kaarteessa vasemmalle nivelvaunun oikea peili ulottuu 2070 mm keskilinjasta eli tarvittava ulottuman levitys on 620 mm eikä 500 mm. Ohjeistusta tullaan tältä osin täydentämään (8.1.2024).
| Pääkaaren säde R [m] | Ulottuman leventäminen sekä ulko- että sisäkaarteessa e (mm) | Vähimmäisraideväli keskilinjasta keskilinjaan [mm] |
| R ≥ 250 | 0 | 3 000 |
| 125 ≤ R < 250 | 100 | 3 200 |
| 85 ≤ R < 125 | 150 | 3 300 |
| 65 ≤ R < 85 | 200 | 3 400 |
| 50 ≤ R < 65 | 250 | 3 500 |
| 45 ≤ R < 50 | 300 | 3 600 |
| 40 ≤ R < 45 | 350 | 3 700 |
| 35 ≤ R < 40 | 400 | 3 800 |
| 30 ≤ R < 35 | 450 | 3 900 |
| 25 ≤ R < 30 | 500 | 4 000 |
| 19 ≤ R < 25 | 600 | 4 200 |
Kaarrelevitys kaaren päissä
Kaarrelevityksen käyttäytyminen kaaren päissä riippuu elementtien välisen siirtymän tyypistä. Seuraavassa käsitellään levityksen määrittely yleisimmissä tapauksissa.
Siirtymä suora–kaari, ilman siirtymäkaarta
Mikäli pääkaari alkaa suoran päästä ilman siirtymäkaarta (klotoidia tai tasoituskaarisarjaa) levitys ulottuu liittyvälle suoralle. Suoralle ulottuvan levityksen pituus on sisäkaarteessa 10 m ja ulkokaarteessa 15 m. Levityksen suuruus joillekin kaarresäteille on esitetty taulukossa 2.
| Pääkaaren säde R (m) | Ulottuman leventäminen sisäkaarteessa, Ls = 15 m es (mm) | Ulottuman leventäminen ulkokaarteessa, Lu = 10 m eu (mm) |
| 19 | 160 | 400 |
| 25 | 120 | 310 |
| 50 | 75 | 170 |
| 70 | 65 | 130 |
| 100 | 55 | 100 |
| 140 | 50 | 80 |
| 200 | 45 | 65 |
| 300 | (40) | (55) |
Siirtymä suora – siirtymäkaari – kaari, siirtymäkaaren pituus Lk < 15 m
Kun siirtymässä suoralta kaarelle on siirtymäkaari (klotoidi tai tasoituskaarisarja), jonka kokonaispituus on vähemmän kuin 15 m, siirtymäkaaren pituus vähennetään taulukossa 2 kuvattujen levennysten pituudesta.
Siirtymä suora – siirtymäkaari – kaari, siirtymäkaaren pituus Lk > 15 m
Kun siirtymässä suoralta kaarelle on siirtymäkaari, jonka kokonaispituus on suurempi kuin 15 m, kaarrelevityksen arvo e kasvaa lineaarisesti suoralta kaarelle.
Korikaari
Jos korikaaren pääkaarien välissä oleva siirtymäkaaren pituus Lk < 15 m, pääkaaren levitys e alkaa kasvaa pienempisäteisen pääkaaren vaatimaan levityksen mittaan 15 m ennen pienempisäteisen pääkaaren päätä.
Jos korikaaren pääkaarien välissä oleva siirtymäkaaren pituus Lk > 15 m, levitysten välinen siirtymä tapahtuu lineaarisesti.
S-kaari
Jos vastakkaisiin suuntiin kääntyvien pääkaarien välisten siirtymäkaarien ja mahdollisen välisuoran yhteismitta on alle 30 m, kaarrelevitykset mitoitetaan siten, että kaarrelevitys e alkaa kasvaa suurempisäteisen pääkaaren vaatimasta mitasta pienempisäteisen pääkaaren vaatimaan mittaan 15 m ennen pienempisäteisen pääkaaren alkua.
Jos vastakkaisiin suuntiin kääntyvien pääkaarien välisten siirtymäkaarien ja mahdollisen välisuoran yhteismitta on suurempi kuin 30 m, kaarteet käsitellään erillisinä kaarteina.
Raiteen kallistuksesta aiheutuva kaarrelevitys
Kallistetussa raiteessa on huomioitava vaunun kallistuminen sisäkaarteen puolelle. Raiteen kallistuksesta johtuva levitys lasketaan kaavan mukaan jossa bH on raiteen levitys sisäkaarteen puolella (mm), D raiteen kallistus (mm) ja H korkeus ksk:sta (mm).

Pelastautumistila
Jokaisen raiteen vieressä tulee olla pelastautumistila aukean tilan ulottuman ulkopuolella. Tila on tarkoitettu sekä matkustajien että radalla työskentelevien pelastautumiseen. Pelastautumistilaan tulee päästä sekä radalta että kaluston ovien kautta. Kaksiraiteisella raitiotielle pelastustilat sijaitsevat ulkoreunoilla. Kadulla pelastautumistila voi sijaita raitiotien alueen ulkopuolella, myös ajoradalla; ei kuitenkaan moottoritien tai moottoriliikennetien ajoradalla.
Kaksiraiteisella raitiotiellä pelastautumistilat sijaitsevat kummallakin reunalla. Lupa-arvopäätöksellä pelastautumistila voi sijaita myös raiteiden välissä. Jos pelastautumistila on raiteiden välissä, rataosalla käytettävässä kalustossa on oltava ovet kyseisellä puolella.
Pelastautumistilan tulee olla 0,8 m leveä, 2,0 m korkea ja esteistä vapaa (etäisyys ATU:sta). Tunneleiden ja siltojen kohdalla pelastautumistilan ulkoreunan ala- ja yläosia voidaan pyöristää rakenteen mukaisiksi lupa-arvopäätöksellä.
Radan suunnassa korkeintaan 1 metrin pituisten esteiden kohdalla pelastautumistilan leveydeksi riittää 0,45 m vaunusta eli 0,2 m ATU:sta. Jos pelastautumistila sijaitsee poikkeuksellisesti raiteiden välissä, korkeintaan 1 metrin pituisten kiinteiden esteiden kohdalla pelastautumistila vaaditaan vain yhden raiteen ja esteen väliin.
Pelastautumistilaa ei edellytetä korkeintaan 50 cm korkeiden esteiden kohdalla (ks. kohta Etäisyys matalaan jatkuvaan esteeseen jäljelmäpä).
Pelastautumistilasta voidaan poiketa lyhyillä matkoilla lupa-arvopäätöksellä. Pelastautumistila on huomioitu tämän ohjeen mitoituksissa

Evakuointitila
Raitiotien mitoituksessa tulee huomioida myös evakuointitila, jos raitiovaunussa on kulkusuuntaansa nähden poistumisovet vain oikealla sivulla ja raitiotien vieressä on jatkuva yli metrin korkea kiinteä este. Evakuointitilan (poistumistien) leveys on 1,2 m pysähtyneestä raitiovaunusta mitattuna. Tämä vastaa 0,95 m etäisyyttä ATU:sta kiinteään esteeseen. Evakuointitila vaaditaan, mikäli este on pidempi kuin rataosalla normaalissa matkustajaliikenteessä liikennöivän kaluston toisistaan kauimpien pariovien välinen etäisyys. Yksisuuntavaunuilla liikennöitävillä rataosilla esteen vähimmäispituus on 4,6 m (MLNRV) ja ainoastaan kaksisuuntavaunuilla liikennöitävillä rataosilla 7,5 m (Artic XL 54).
Tunneleissa ja silloilla evakuointitila saatetaan tarvita, vaikka raitiovaunussa olisi ovet molemmilla puolilla. Tarve tulee sopia pelastusviranomaisten kanssa.

Etäisyys kiinteisiin esteisiin
Kiinteiden esteiden sijoittelussa tulee etäisyyden lisäksi huomioida risteyksissä kiilautumisvaaran takia vaadittava esteistä vapaa alue kohdan Kiinteiden esteiden sijoittelu liittymissä mukaisesti.
Raitiotien etäisyys pistemäisiin kiinteisiin esteisiin
Pistemäiseksi kiinteäksi esteeksi luokitellaan esteet, joiden leveys tai halkaisija on enintään 1 m ja joiden vierestä pääsee esteettä poistumaan vaunusta. Esimerkiksi pylväs ja katupuu ovat pistemäisiä kiinteitä esteitä. Korkeintaan 50 cm korkeisiin esteisiin voidaan kuitenkin soveltaa matalien esteiden ohjetta.
Etäisyyden ATU:sta radan ulkoreunalla olevaan pistemäiseen kiinteään esteeseen tulee olla vähintään 0,2 m (lupa-arvo), mutta normaalitilanteessa 0,4 m.

Etäisyys jatkuviin kiinteisiin esteisiin
Jatkuva kiinteä este on pitkänomainen este kuten aita, seinä tai sillan kaide. Radan suunnassa yli metrin pituiset esteet ovat jatkuvia esteitä. Etäisyydestä voidaan poiketa lyhyillä matkoilla erilisillä lupa-arvopäätöksellä kohteissa, joissa esimerkiksi raitiotien nopeus on alhainen tai raitiovaunussa ei kuljeteta matkustajia. Tällaisia lyhyitä kohteita voi olla esimerkiksi bussipysäkkien tai ylityspaikkojen yhteydessä (kaiteet). Päätepysäkkien ja kääntöraiteiden yhteydessä etäisyydestä voidaan tarvittaessa tinkiä koko pysäkin matkalla.
Etäisyyden ATU:sta jatkuvaan kiinteään esteeseen tulee olla vähintään 0,8 m. Tämän lisäksi tulee huomioida mahdollinen evakuointitila luvun Raitiotien tilavaatimukset kohdan Evakuointitila mukaisesti. Korkeintaan 50 cm korkeisiin esteisiin voidaan soveltaa matalien kaiteiden ja aitojen ohjeita.

Etäisyys matalaan jatkuvaan esteeseen (50 cm tai alle)
Matalalla esteellä tarkoitetaan matalaa aitaa tai kaidetta, jolla rajataan rata-aluetta. Matalan esteen korkeus on enintään 50 cm.
Lähtökohtaisesti käytetään avokaidetta, jonka läpi raitiotiealue voidaan aurata. Jos on tarve estää radalle pääseminen esimerkiksi suoja-aidalla, tulee suunnittelussa huomioida raitiotien vaatima lumitila.
Etäisyyden ATU:sta matalaan esteeseen tulee olla vähintään 0,25 m.

Etäisyys liikenteenohjauslaitteisiin
Liikenteenohjauslaitteiden kuten liikennevalojen ja liikennemerkkien sijoitus tulee aina huomioida erikseen raitiotien poikkileikkauksen suunnittelussa. Liikenteenohjauslaitteiden etäisyyksissä on huomioitu asennusvarat. Liikennemerkkipylvään etäisyys perustuu normaalikokoiseen (900 mm) liikennemerkkiin.

| Normaali | Minimi | Lupa-arvo | |
| Liikennemerkkipylvään etäisyys ATU:sta (A) | 0,70 | 0,55 | 0,25 |
| Liikennemerkin etäisyys ATU:sta (B) | 0,25 | 0,1 | |
| Liikennevalo-opastimen etäisyys ATU:sta (C) | 0,25 |
Etäisyys puihin
Puut, yhteiskäyttöpylväät ja liikenteen näkemäalueet tulee sovittaa toisiinsa voimassa olevien ohjeiden ja määräysten mukaisesti. Risteysalueilla on huomioitava myös mahdollisten raiteiden risteämäpaikkojen (vaihteet/raideristeykset) vaatimat tiheämmät ajojohdinrakenteiden kannatuspisteet (pylväät ja vaiherakenteet).
Katupuut on istutettava riittävän etäälle raitiotiealueesta turvallisuuden takaamiseksi ja raitiovaunun eri osien rikkoutumisen estämiseksi. Virroittimen vaara-alueelle (ViVa) tai aukean tilan ulottumaan, raitiovaunun rungon vaatima dynaamisen tilaan (ATU) ei saa istuttaa katupuita, eikä puun lehvästö saa kasvaa alueille.
Katupuiden etäisyys ATU:sta vaihtelee puiden koon mukaan. Katupuiden istutusetäisyyden tulee olla vähintään 3,5 metriä raiteen keskilinjasta. Neljän metrin etäisyys raiteen keskilinjasta on suositeltavaa sähköturvallisuuden takaamiseksi.
Muissa ajojohdinrakenteiden osissa kuten yhteiskäyttöpylväät, kannatinvaijerit ja orsirakenteet noudatetaan yhden metrin turvaetäisyyttä.
Riittävä istutusetäisyys ajoradan reunaan on myös huomioitava tapauksessa, jossa istutuskaistan toisella puolella sijaitsee ajorata.
Suurella puulla tarkoitetaan tässä ohjeessa täysi-ikäisenä latvuksen leveydeltä 5 – 7 metriseksi kasvavia puita. Myös kapeakasvuiset lehmuslajikkeet luetaan suuriksi puiksi. Kapealajikkeisella puulla tarkoitetaan puuta, jonka latvuksen leveys on 3 – 4,5m.
Istutusetäisyys 6 m
Suurikokoisen puun latvus saa kasvaa melko vapaasti, ja hoitotarve on vähäinen.
Istutusetäisyys 5 m (raiteen keskilinjasta)
Suurikokoisen puun latvusta on hoitoleikattava, mutta hoitotarve on vähäisempi kuin kapeammalla 4 metrin istutuskaistalla ja lehvästön vaikutelma säilyy.

Istutusetäisyys 4 m (raiteen keskilinjasta)
Suurikokoisen puun latvusta on hoitoleikattava vuosittain, ja latvuksen karsittava osuus on suurempi kuin leveämmillä istutuskaistoilla.

Istutusetäisyys 3,5 m (raiteen keskilinjasta)
Vain kapealatvuksisten lajikkeiden käyttö on mahdollista. Hoitotarve on melko vähäinen.

Raitiotie rakenteen alla
Raitiotien suunnittelussa rakenteen alle tulee huomioida ratasähkön vaatimukset, radan (pysty)geometria sekä rakenteen alle tulevat muut laitteet ja varusteet. Lisäksi mahdollisiin ratkaisuihin vaikuttaa se, kulkeeko raitiotiellä ajoneuvoliikennettä ja risteääkö ajoneuvoliikenne raitiotietä matalan rakenteen lähellä.
Raitiotien yläpuolella olevien rakenteiden normaali vapaa korkeus on 5,2 m. Normaali korkeus mahdollistaa 4,9 m ajolangan korkeuden tyypillisellä 0,3 m ripustusvaralla, jolloin 4,4 m korkea ajoneuvo voi käyttää samaa kaistaa raitiotien kanssa (kuva 19).

Raitiotie voidaan toteuttaa tarvittaessa myös alle 5,2 m korkean rakenteen alle, jolloin suunnitteluratkaisu tulee hyväksyttää erikseen. Raitiotien sijaitessa rakenteiden alla tulee huomioida, että ajolangan laskeminen ja nostaminen tulee tehdä riittävän pitkällä matkalla (katso kohta Ratasähkö ja tekniset järjestelmät). Tällä voi olla vaikutusta risteävien ajoneuvojen vapaaseen korkeuteen rakenteen lähellä. Ajolangan ripustaminen alle normaalin minimikorkeuden (4,9 m) saattaa rajoittaa raitiotien nopeutta tai aiheuttaa ajolangan sekä raitiovaunun virroittimen normaalia suurempaa kulumista.

Ajolangan ja ajoneuvojen välissä tulee lähtökohtaisesti olla 0,5 m turvamarginaali. Ajoneuvojen sallittua korkeutta tulee siten rajoittaa normaalista 4,4 m maksimikorkeudesta, jos ajolangan korkeus on pienempi kuin 4,9 m. Taulukossa 4 on esitetty alle 4,9 m ajolangan korkeutta vastaavat ajoneuvojen suurimmat sallitut korkeudet sekä vastaava viitteellinen rakenteen vapaa korkeus 0,3 m ripustusvaralla. Erikoisratkaisulla ripustusvaraa on joissakin tapauksissa mahdollista pienentää. Ajoneuvojen korkeuden rajoittamiseen käytetään liikennemerkkejä kaupunkikohtaisen ohjeistuksen mukaisesti.
| Ajolangan korkeus [m] | Ajoneuvon sallittu korkeus [m] | Viitteellinen rakenteen vapaa korkeus [m] |
| 4,8 | 4,3 | 5,1 |
| 4,7 | 4,2 | 5,0 |
| 4,6 | 4,1 | 4,9 |
| 4,5 | 4,0 | 4,8 |
| 4,4 | 3,9 | 4,7 |
| 4,3 | 3,8 | 4,6 |
| 4,2 | 3,7 | 4,5 |
Mikäli 0,5 m turvamarginaali ei ole mahdollinen olemassa olevan rakenteen takia, poikkeustapauksissa voidaan käyttää pienimmillään 0,3 m turvamarginaalia (taulukko 5). Alle 0,5 m turvamarginaalilla tulee ajoneuvoille lähtökohtaisesti käyttää rakenteellista korkeusrajoitinta. Korkeusrajoitin ei voi sijaita raitiotien ajolangan kodalla, joten se on sijoitettava raitiotielle johtavalla reitillä ennen raitiotielle liittymistä. Alle 0,5 m turvamarginaalia käytettäessä ajoneuvojen suurin sallittu korkeus merkitään jo 4,4 metristä alkaen (taulukko 5).
Jos liikenneympäristö ei mahdollista korkeusrajoittimen käyttämistä, lupa-arvopäätöksellä voidaan hyväksyä korvaava ratkaisu, jossa ajoneuvojen korkeusrajoitusta tehostetaan riittävillä merkinnöillä ja ennakkomerkeillä. Lupa-arvopäätöksessä sovelletaan VDV:n ohjetta 550 (VDV-Regelwerk 550: Fahrleitungsanlagen) sekä huomioidaan mm. korkeiden ajoneuvojen todennäköisyys käyttää kyseistä reittiä. Riskejä voidaan pienentää myös käyttämällä kiristettyä ajolankaa, jonka korkeuteen lämpötila vaikuttaa vähemmän kuin kiristämättömään ajolankaan.
| Ajolangan korkeus [m] | Ajoneuvon sallittu korkeus [m] | Viitteellinen rakenteen vapaa korkeus [m] |
| 4,7 | 4,4 | 5,0 |
| 4,6 | 4,3 | 4,9 |
| 4,5 | 4,2 | 4,8 |
| 4,4 | 4,1 | 4,7 |
| 4,3 | 4,0 | 4,6 |
| 4,2 | 3,9 | 4,5 |
Jos rakenteen alla kulkee ainoastaan raitiovaunuja, eikä muu liikenne risteä raitiotietä rakenteen lähellä, rakenteen vapaa korkeus voi pienimmillään olla 4,5 m. Suunnitteluratkaisu tulee kuitenkin hyväksyttää erikseen, jotta ajolangan riittävä korkeus ja korkeuden muutokseen tarvittava matka voidaan varmistaa.
